Prodaja

POSEDARJE, SNIŽENO!, POGLED NA MORE!

567-1

ID nekretnine

85 m2

Veličina

2

Spavaće sobe

1

Kupaonica

225,000€

Opis

Odlična prilika! Samostojeća kuća s okućnicom na idiličnoj lokaciji, u Posedarju, na samo 50 metara od plaže! Sa terase i iz sobe pruža se prekrasan pogled na more. Uređen vrt, mediteransko bilje, terasa.

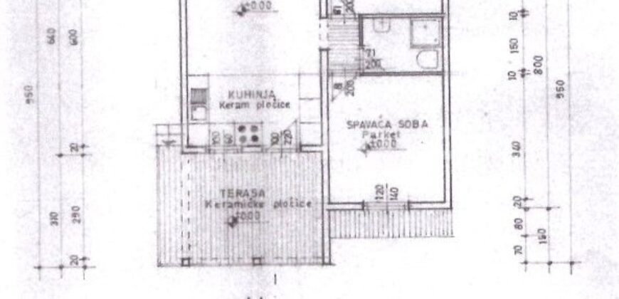
Kuća se sastoji od stana na visokom prizemlju/katu, te podruma, koji može služiti kao zasebna manja jedinica za stanovanje.  U kući su dnevni dio s kuhinjom, dvije sobe i kupaonica. Ima priključke za struju i vodu, a također ima i septičku jamu.

Okućnica je uređena i održavana, a u kuću je potrebno uložiti dodatna sredstva za adaptaciju. Moguća zamjena za nekretninu u Zadru ili stan u Zagrebu.

Ova nekretnina posebno je atraktivna zbog blizine plaže na kojoj nema gužve, što je rijetkost u turistički popularnim područjima. Uz malo prilagodbe i adaptaciju, ova kuća može postati savršen dom ili vikendica za uživanje u mediteranskom načinu života.

Kontakt: 091/7677-657, 091/5699-347, [email protected]

 

Adresa

Adresa: Zadarska
  • Zemlja: Croatia
  • Županija / Regija Hrvatska
  • Grad / Mjesto: Posedarje
  • ID nekretnine 567-1
  • Cijena 225,000€
  • Tip nekretnine Kuća
  • Status nekretnine Prodaja
  • Sobe 2
  • Spavaće sobe 2
  • Broj kupaonica 1
  • Godina gradnje 1985
  • Veličina85 m2
  • Zemljište 300 m2
  • Godina izgradnje 1985
  • Kat podrum,visoko prizemlje
  • Tip zemljišta Samostojeća kuća
  • Udaljenost od mora 50

Kontakt

Ratings & Reviews

0 0 Reviews
  • 5 0 %
  • 4 0 %
  • 3 0 %
  • 2 0 %
  • 1 0 %

0 Reviews