Opis
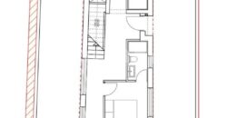
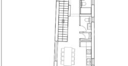
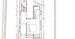
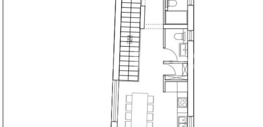
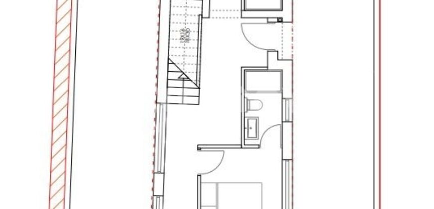
Prilika! Prodaje se zemljište s projektom za kuću katnicu! Zemljište se prodaje s kompletnom dokumentacijom i građevinskom dozvolom. Predviđena je gradnja kuće katnice kojoj se u prizemlju nalaze tri spavaće sobe s vlastitim kupaonicama, a na katu je dnevni boravak s pogledom na more, kuhinja, blagovaonica, toalet, dodatna spavaća soba s kupaonicom. S terase na prvom katu penje se na krovnu terasu koja će imati otvoreni pogled na more. Ispred kuće je predviđen bazen. Zemljište je svega 80 metara udaljeno od mora i plaže! U mirnom je dijelu mjesta, nema puno prometa.
Uz zemljište može se kupiti dodatna kvadratura zemljišta.
Za sve dodatne informacije javite nam se na: 091/7677-657 ili [email protected]
Adresa
Adresa:
Zadarska
- Zemlja: Croatia
- Županija / Regija Hrvatska
- Grad / Mjesto: Privlaka
- ID nekretnine 561-1
- Cijena 185,000€
- Tip nekretnine Zemljište
- Status nekretnine Prodaja
- Veličina500 m2
- Tip zemljišta Građevinsko zemljište
- Udaljenost od mora 80











