Opis
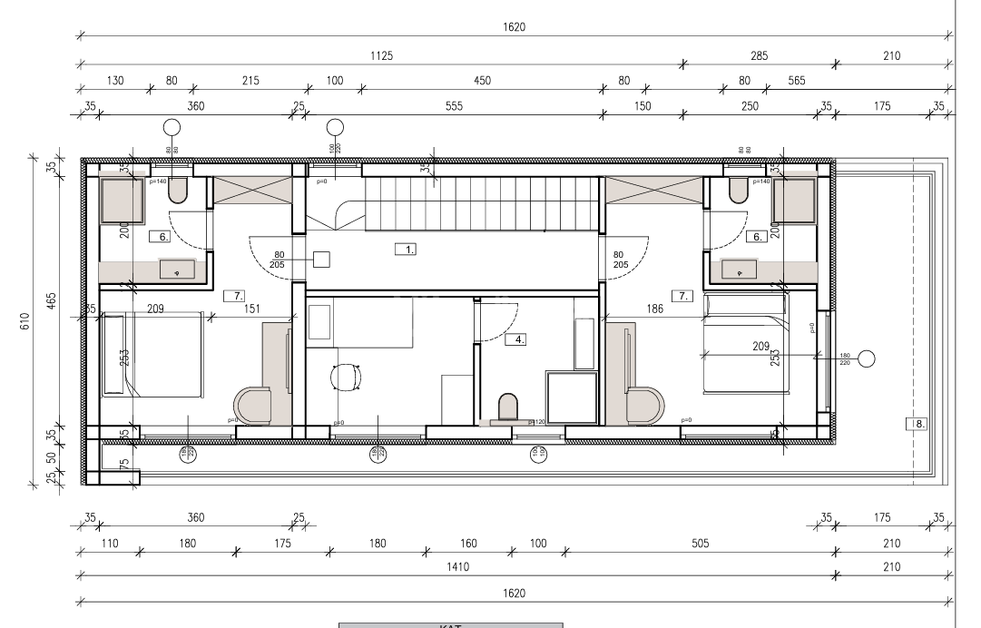
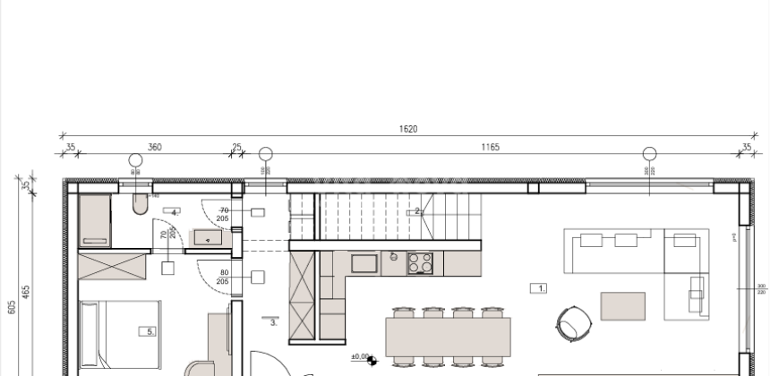
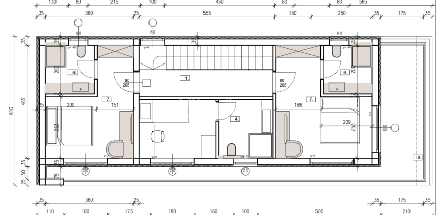
Crno – Prodaje se s zemljište građevinskom dozvolom za kuću katnicu s bazenom. Zemljište je površine 413 m2. Jedan dio zemljišta je rezerviran za put. Kuća je projektirana na način da se u prizemlju nalaze kuhinja, blagovaonica, dnevni boravak, spavaća soba, kupaonica, dok su na katu tri spavaće sobe i tri kupaonice, te terasa. Pored kuće je bazen.
Zemljište je smješteno u mirnom i sve traženijem mjestu Crno. Parcela dolazi s važećom dozvolom za izgradnju kuće, što budućem vlasniku značajno štedi vrijeme i pojednostavljuje proces gradnje. Lokacija pruža idealan spoj privatnosti i blizine svih potrebnih sadržaja, čineći je savršenim izborom za obiteljsku kuću ili investiciju za odmor.
Za dodatne informacije i dogovor oko razgledavanja, slobodno se javite. Kupac ne plaća agencijsku naknadu.
Kontakt: 091/7677-657, [email protected]
Adresa
- Zemlja: Croatia
- Županija / Regija Hrvatska
- Grad / Mjesto: Zadar
- Neighborhood: Crno
- ID nekretnine 727-1
- Cijena 100,000€
- Tip nekretnine Zemljište
- Status nekretnine Prodaja
- Veličina413 m2
- Tip zemljišta Građevinsko zemljište



